Talk to us

We joined this project after initial works were paused, with parts of the interior partially dismantled and behind schedule.

Duration

11weeks

Planned delivery window

Total Size

730

Project area

Sector

Commercial

Primary project type

Location

SE15 1NX, London

Project area

Project Brief

Taking a structured approach, we reviewed scope, resolved issues, and redefined the programme to bring the project back under control.

Scope of Works

  • Scope reassessment and issue resolution after paused works.
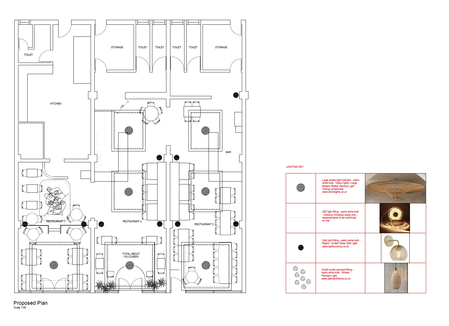
  • Spatial reconfiguration and layout coordination.
  • Bespoke furniture integration and joinery finishes.
  • Lighting, decorative works, and final fit-out completion.
805 Restaurant | SE15 1NX project image

Complex Recovery and Full Renovation

From spatial reconfiguration to bespoke furniture, finishes, and lighting, the full renovation was delivered to match the client vision.

Challenges & Delivery

The site had partially dismantled areas and fragmented prior work. We stabilised the programme and sequenced trades to recover delivery with quality.

Outcomes

Recovery

Re-started and restructured a stalled project effectively.

Integration

Design intent delivered across layout, furniture, and finishes.

Confidence

Client brief translated into a complete, coherent space.

805 Restaurant | SE15 1NX